Holzchalet
Miet Preis
400€ ttc
Lieferung pauschal für Luxemburg 55€ ttc Zusatzkosten ab Grenze 1€/km Auf und Abbau 40€ ttc
Produkt Information
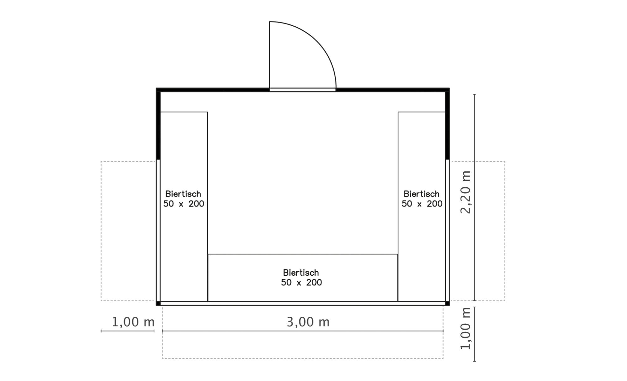
3 x2,20 m
Sie haben Fragen? Dann Kontakteren Sie uns.